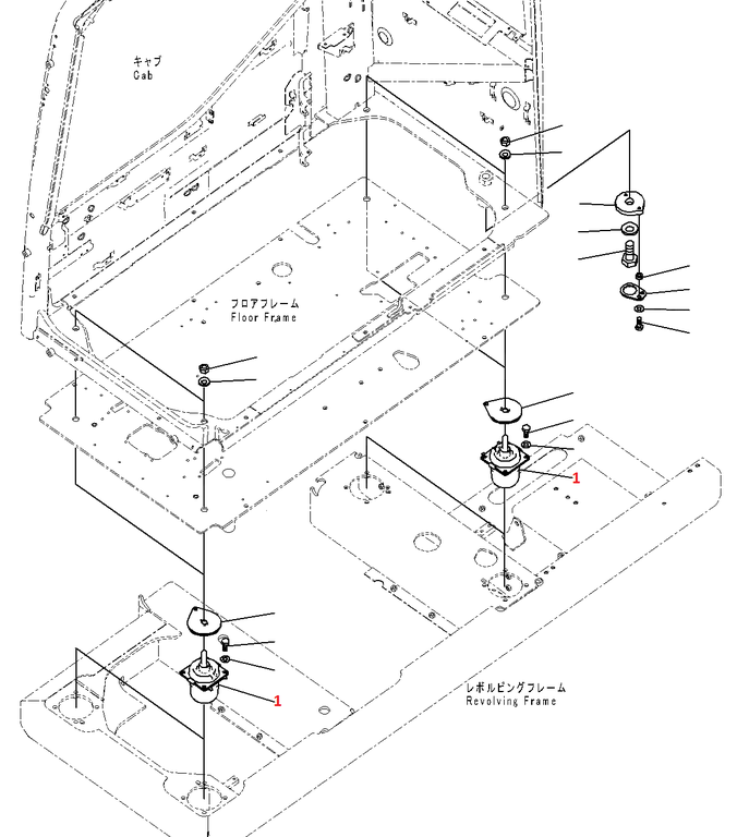
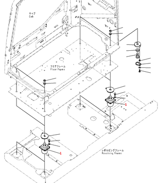
Артикул: 20Y-53-13113, 20Y-53-13121, 20Y5313113, 20Y5313121
Нет в наличии
